Dom parterowy.
opcja 4 pokojowa
Zestawienie cen
| SSO | 393 000 zł |
|---|---|
| SSZ | 431 000 zł |
| Deweloperski | 639 000 zł |
Czas realizacji
- do 8 miesięcy
Rozpoczęcie prac
- do 6 tygodni od otrzymania prawomocnego pozwolenia na budowę/pozytywnej decyzji kredytowej
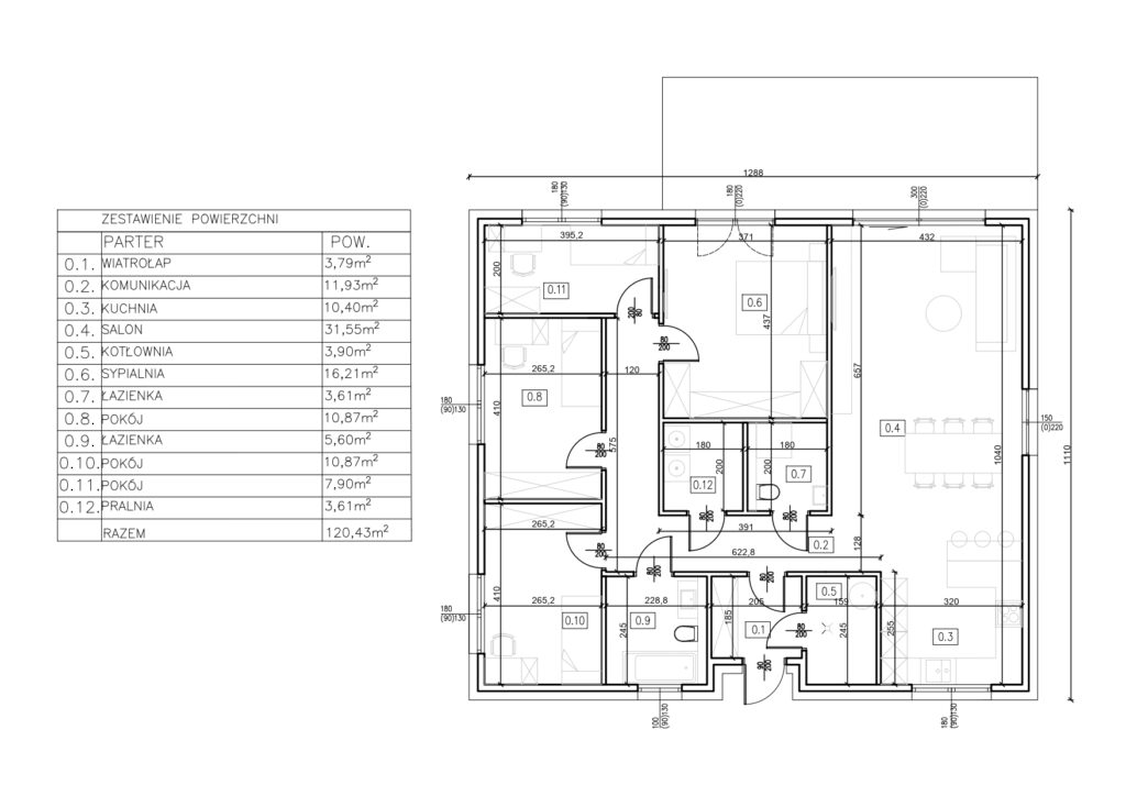
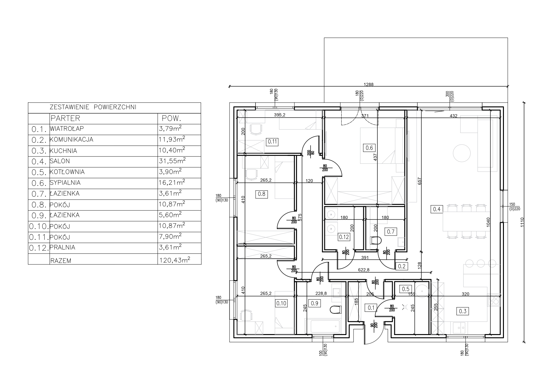
Zestawienie powierzchni.
- razem: 120,43 m²
| Lp. | Parter | Powierzchnia |
|---|---|---|
| 0.1 | WIATROŁAP | 3,79 m² |
| 0.2 | KOMUNIKACJA | 11,93 m² |
| 0.3 | KUCHNIA | 10,40 m² |
| 0.4 | SALON | 31,55 m² |
| 0.5 | KOTŁOWNIA | 3,90 m² |
| 0.6 | SYPIALNIA | 16,21 m² |
| 0.7 | ŁAZIENKA | 3,61 m² |
| 0.8 | POKÓJ | 10,87 m² |
| 0.9 | ŁAZIENKA | 5,60 m² |
| 0.10 | POKÓJ | 10,87 m² |
| 0.11 | POKÓJ | 7,90 m² |
| 0.12 | PRALNIA | 3,61 m² |
Zbudujemy twoją wizję.
Chcesz się dowiedzieć więcej lub zobaczyć ten projekt na żywo?
Cena zawiera.
Projekty i procesowanie
- Projekt budowlany, techniczny oraz procesowanie pozwolenia na budowę,
- projekty konstrukcyjne: płyta fundamentowa, ściany oraz wiązary,
Stan surowy otwarty
- płyta fundamentowa (wymiana gruntu do 50cm), izolacja pionowa oraz pozioma XPS 10/15 cm, zbrojenie, beton wodoszczelny W8 C25/30,
- ściany prefabrykowane z keramzytobetonu nośne, działowe oraz ściany szczytowe w przypadku dachu dwuspadowego,
- komin i kanały wentylacyjne,
- wiązary prefabrykowane, drewno C24 suszone komorowo,
- membrana, łaty, kontrłaty (bez pełnego deskowania),
- blachodachówka – wzór i kolor do wyboru,
- obróbka dachowa,
- rynny, rury spustowe
Stan surowy zamknięty
- membrana, łaty, kontrłaty (bez pełnego deskowania)
- blachodachówka
- obróbka dachowa
- rynny, rury spustowe
- okna 3-szybowe, 7-komorowe, kolor zewnętrzny do wyboru, System profili: Aluplast
- drzwi zewnętrzne stalowe Wikęd (lub inne o tych samych parametrach)
- schody strychowe drewniane
- strop lekki z płyt GK, jednowarstwowo
- w przypadku domu z garażem – brama garażowa Wiśniowski (lub inna o tych samych parametrach)
Stan deweloperski
- docieplenie podłogi - styropian EPS 100,
- wylewki cementowe,
- ściany - gładź polimerowa + finisz,
- instalacja elektryczna wewnątrz budynku, bez podłączenia do sieci, włączniki, gniazdka,
- instalacja wodno-kanalizacyjna wewnątrz budynku, bez podłączenia do sieci,
- instalacja wodna ogrzewania podłogowego (materiał i montaż bez pieca i osprzętu),
- docieplenie stropu pianą pur 25cm (dolny pas wiązarów), otwartokomórkowa,
- schody strychowe drewniane termoizolacyjne,
- Płyty OSB w centralnej części poddasza,
- strop lekki, jednowarstwowo, wykończenie Q3, Płyta gipsowo-kartonowa (ognioodporna), w łazienkach: płyta różowa ognioodporna + druga warstwa płyty wodoodpornej.
- elewacja - styropian 20cm grafitowy,
- tynk – kolor do wyboru,
- parapety stalowe na zewnątrz,
- podbitka PCV – kolor do wyboru,